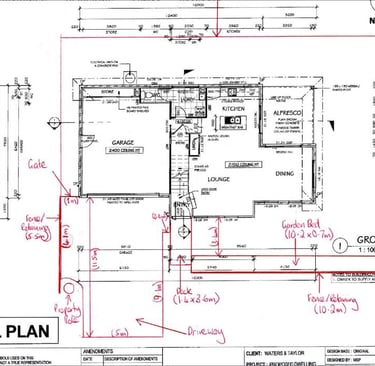
Revisions From Sketch
OVERVIEW
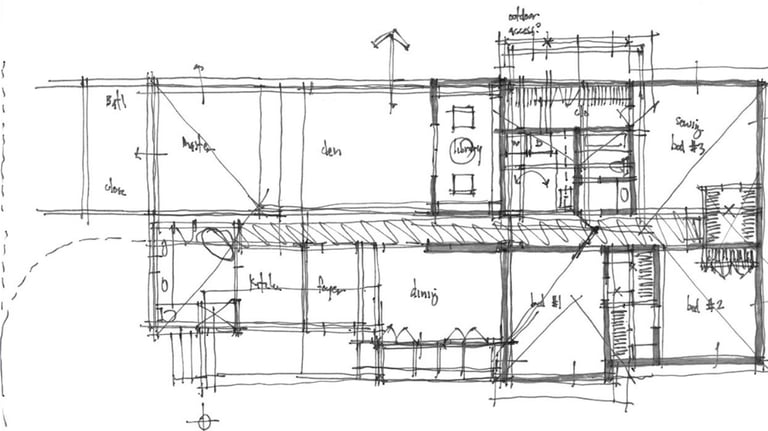
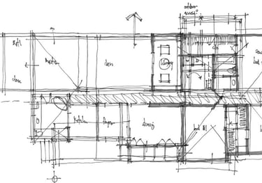
Spend a moment to sketch out what you hope to see in your plans. We’ll follow it.
DELIVERY
5 Days Delivery*
2 Revisions
DELIVERABLES
Revisions Following Sketch
Revisions Checked Off
Revisions proofed prior to re-issue



Spend a moment to sketch out what you hope to see in your plans. We’ll follow it.
5 Days Delivery*
2 Revisions
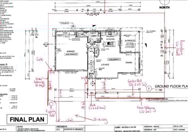
Revisions Following Sketch
Revisions Checked Off
Revisions proofed prior to re-issue



