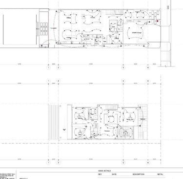
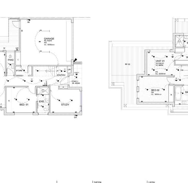
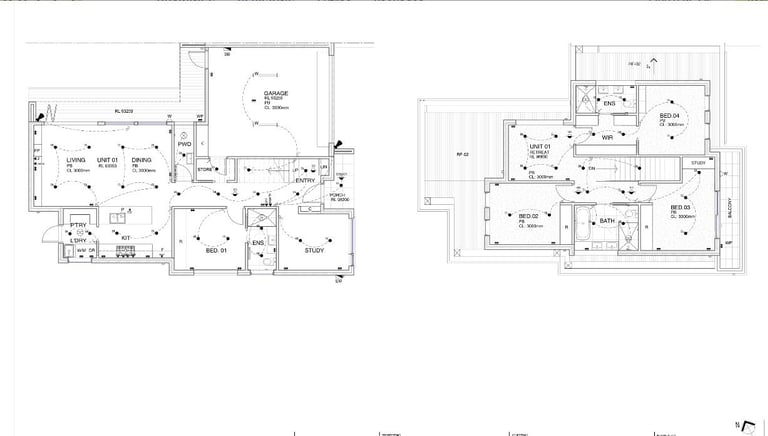
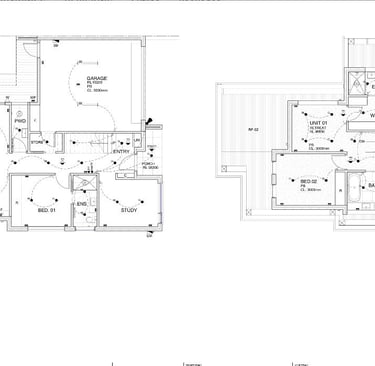
RCP & Electrical
OVERVIEW
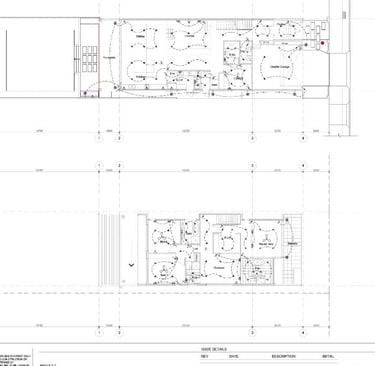
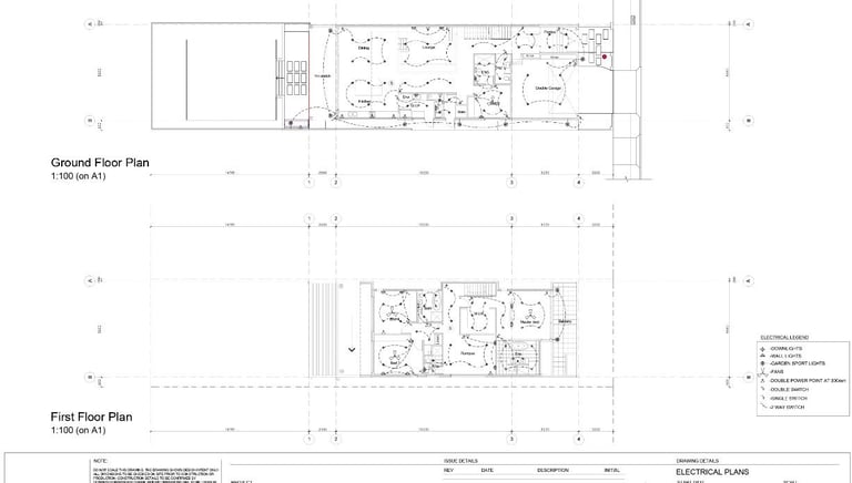
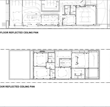
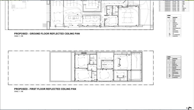
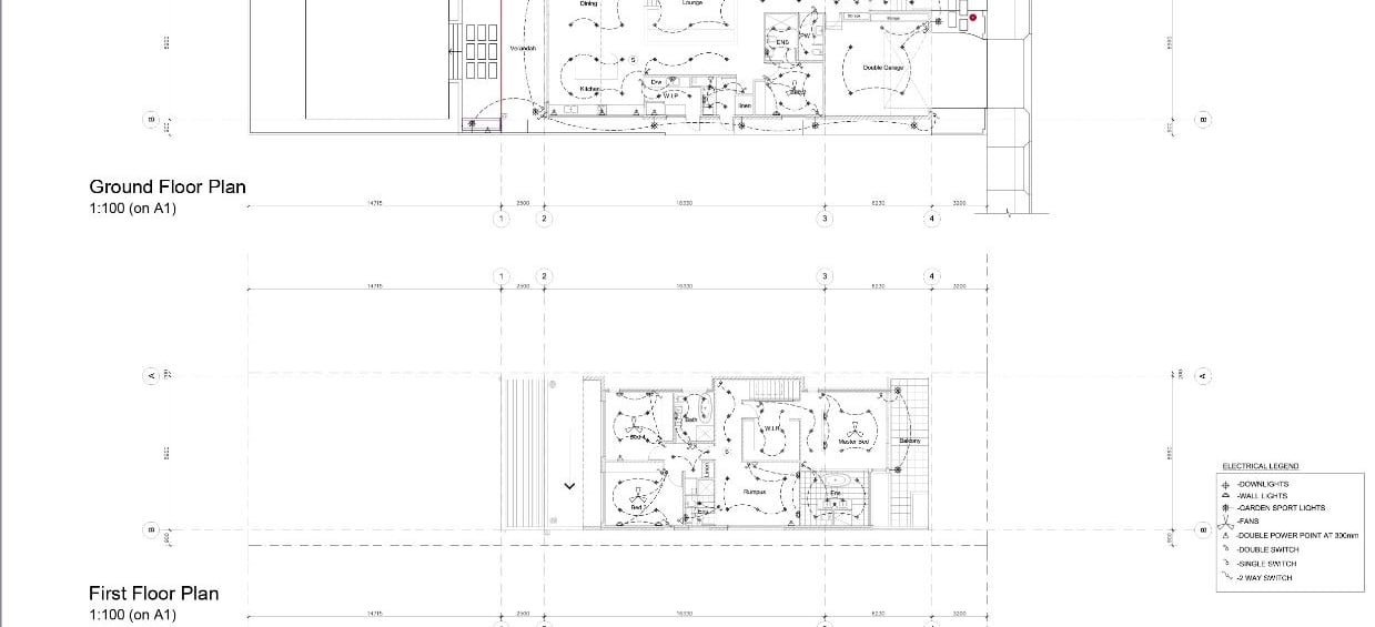
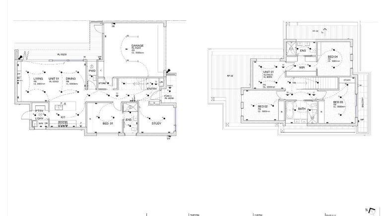
Showing all visible objects located on the ceiling, electrical and lighting layout and electrical circuits.
DELIVERY
2 Days Delivery*
2 Revisions
DELIVERABLES
Ceiling Lighting
Wall, Garden, Spot
GPOs
Switch Plates




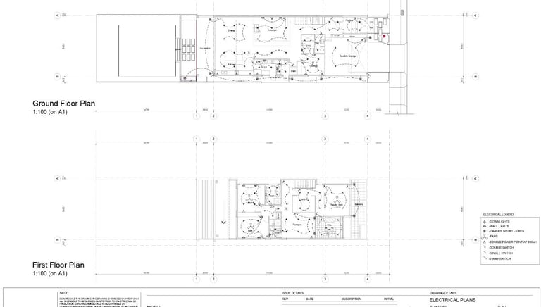
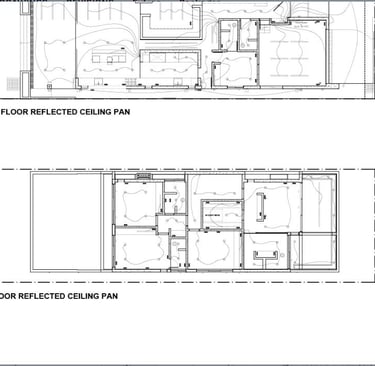
Showing all visible objects located on the ceiling, electrical and lighting layout and electrical circuits.
2 Days Delivery*
2 Revisions
Ceiling Lighting
Wall, Garden, Spot
GPOs
Switch Plates




