Elevations
OVERVIEW
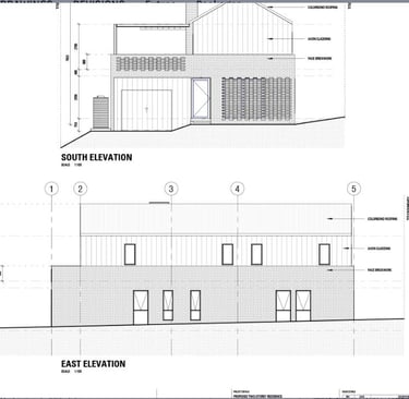
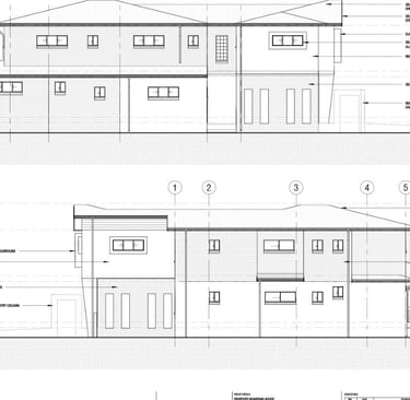
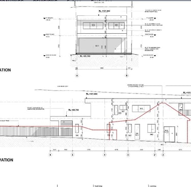
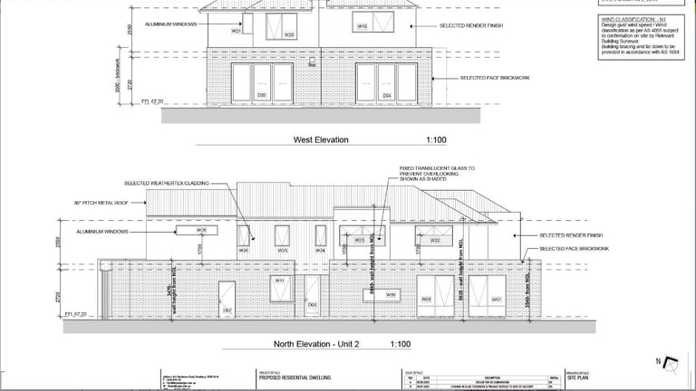
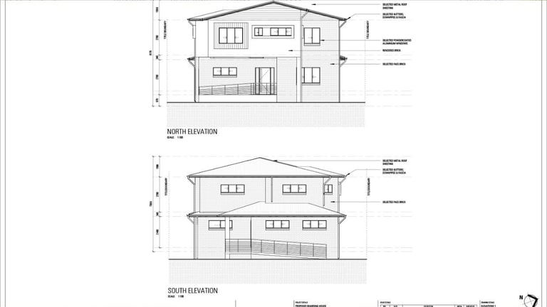
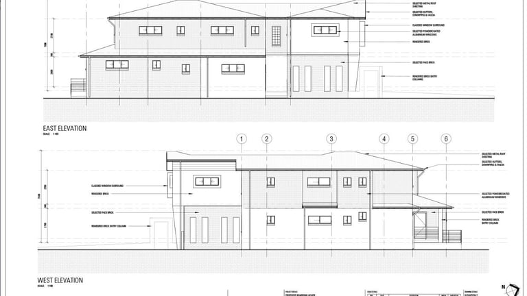
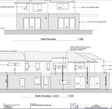
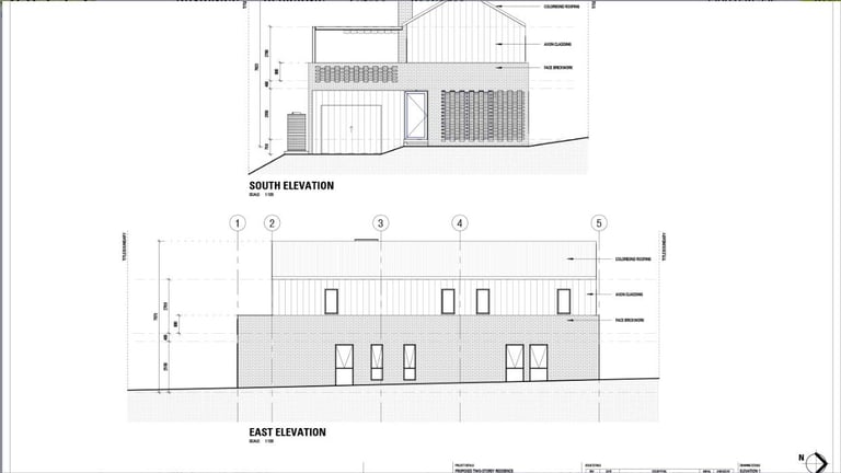
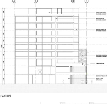
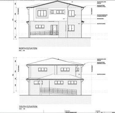
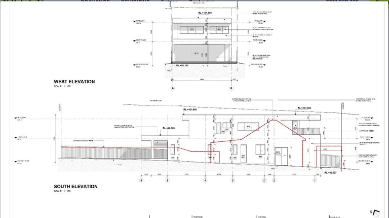
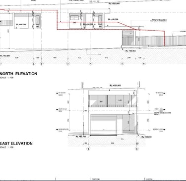
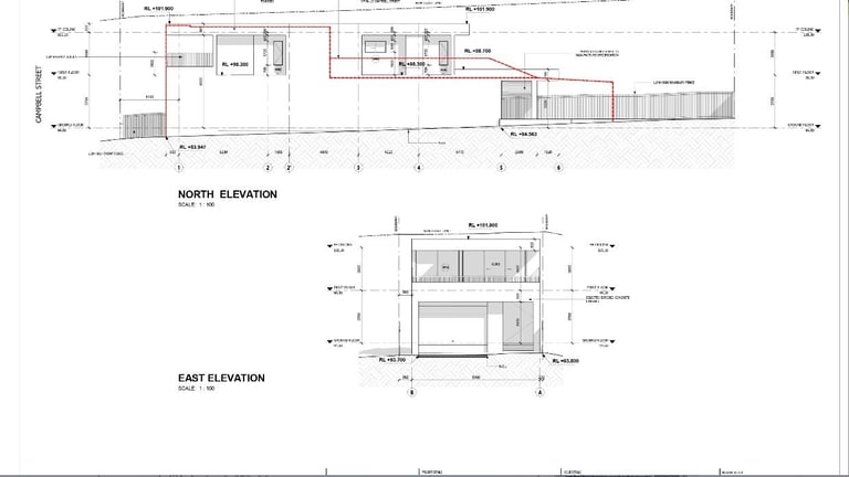
Elevations of all sides, North, South, East and West. Showing RL heights, window and door openings.
DELIVERY
5 Days Delivery*
2 Revisions
DELIVERABLES
Elevations North South East West
Window and Door Openings
RL Heights



Elevations of all sides, North, South, East and West. Showing RL heights, window and door openings.
5 Days Delivery*
2 Revisions
Elevations North South East West
Window and Door Openings
RL Heights



